Sie sind hier: Startseite > Gartengestaltung: Pläne und Bilder von über 100 Projekten > kleine Gärten bis 150 qm > Garten 100 qm mit Hochbeet und zweiter Terrasse > Ausführungs- und Pflanzplan‚ Gartenplan
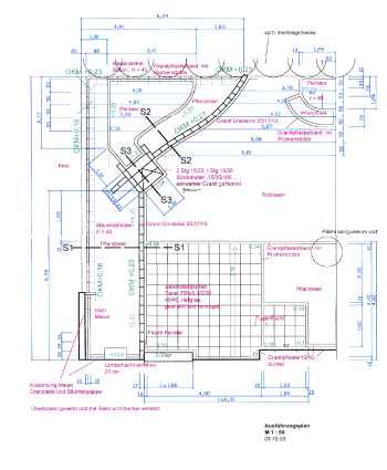
Ausführungsplan
Der 3. Vorentwurf wurde nahezu unverändert übernommen und darauf aufbauend die Ausführungsplanung erstellt, auf der sämtliche Materialien, Maße und Höhenangaben zu finden sind.
Pflanzplan für Stauden und Gehölze
Der Pflanzplan wurde der Einfachheit halber von Hand erstellt.
Die Bepflanzung setzt sich aus standortgerechten, relativ pflegeleichten Stauden zusammen, die in pastellfarbenen, kalten Farbtönen erblühen (rosa-weiß-violett).
Herzstück des Gartens ist ein Zierapfel-Hochstamm (Malus ‚Professor Sprenger‘), der im Frühjahr mit einer üppigen Blütenpracht erfreut und sich im Winter nach flammender Herbstfärbung monatelang mit kleinen Zieräpfelchen schmückt.
Pflanzplanung für Zwiebelblumen
Zwischen den Stauden werden über 400 Zwiebelblumen gepflanzt, die im Frühjahr für das erste Highlight sorgen.
Ihr Ansprechpartner
Dipl.-Ing. Johannes WindtInhaber
Schwohenend 55
41352 Korschenbroich
mobil: 0162 6798490


