Zu Beginn der Planung entstanden vier verschiedene Varianten für die Teiche im Garten. Nur einer der Entwürfe sieht die komplette Teichanlage im oberen Garten-Teil vor. Bei allen anderen Varianten wird der Schwimm-Teich im unteren Garten-Bereich angeordnet (in der linken Hälfte des Plans). Der Regenerationsbereich ist im oberen Teil direkt an der Hauptterrasse vorgesehen. Die Reliefenergie konnte gut durch einen eindrucksvollen Wasserfall betont werden, welcher beide Teiche miteinander verbindet. Aufgrund des großen Höhenunterschieds war es möglich, gleich mehrere Wasserfall-Stufen zu integrieren. Es stellte sich die Frage, ob das als naturnah gestaltetes Steinarrangement oder als moderne Variante mit Edelstahlkanten gebaut werden sollte. Jede dieser Varianten hat ihren individuellen Reiz. Aufgrund der klaren Architektur des Wohngebäudes macht jedoch auch eine klare, großzügige Linienführung in der Garten-Gestaltung einen dazu passenden Eindruck. Dem entsprechend sollten die Holzdecks, welche die Teiche umgeben, mit langen, geraden Linien gestaltet werden.




Für die Vorzugsvariante haben wir eine perspektivische Zeichnung von oben, sowie eine Straßenansicht erstellt.
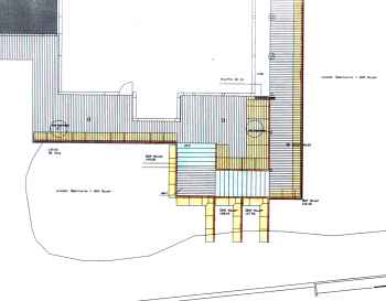
Die aufbauenden Ausführungspläne veranschaulichen den technischen Aufbau der Anlage. Einer dieser Pläne zeigt die Anordnung der Mauerscheiben, welche die Wasserzone vom Holzdeck am Haus trennen.
Bevor die Pflanz-Planung detailliert ausgearbeitet wurde, entstand zunächst ein Pflanzkonzept als Handzeichnung, auf dem bestimmte Pflanzengruppen, noch ohne Stückzahlen eingetragen sind. Diese Vor-Planung wurde zunächst mit den Kunden besprochen, bevor die eigentliche detaillierte Pflanzplanung für den Garten und die Teiche angefertigt wurde.
Eine Liste der verwendeten Wasserpflanzen finden Sie hier: Liste Wasserpflanzen
Eine Liste der verwendeten Land-Pflanzen finden Sie hier: Pflanzenliste



